Please find some examples of our relocatable homes below
Our one bedroom self-contained relocatable home offers a new modern twist when it comes to cosy living. Built on a sturdy steel frame base, externally clad in maintenance free Colorbond and are fully insulated. This relocatable home includes:- 1 bedroom, kitchen, dining / lounge area and a combined bathroom, laundry and toilet. A built on veranda is also an option.
For all enquiries, quotes & floor plans
contact us today:
Office- 03 55654341
Email-
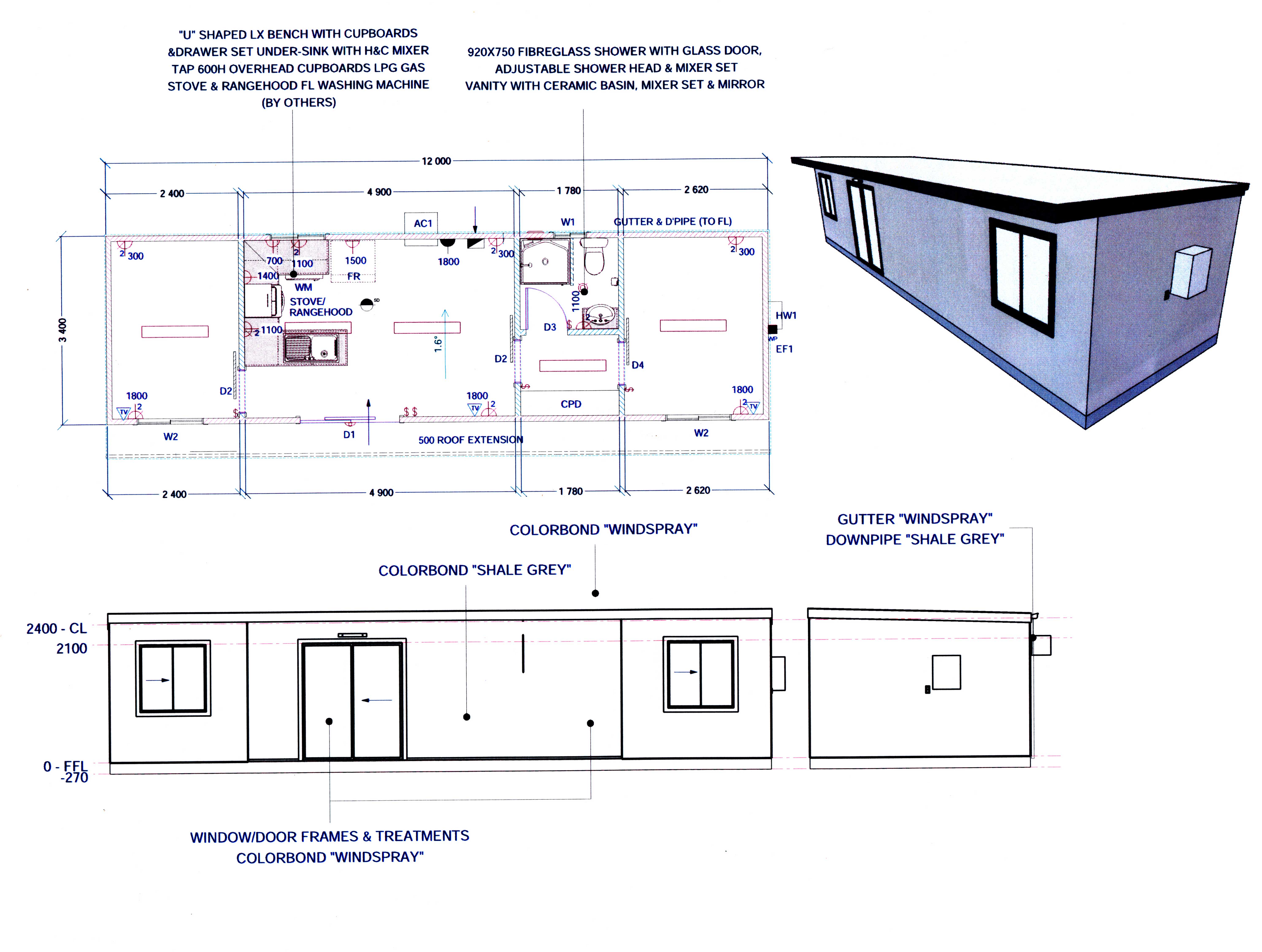
Our two bedroom self contained relocatable home offers a new modern twist when it comes to cosy living. Built on a sturdy steel frame base, externally clad in maintenance free Colorbond and are fully insulated. This relocatable home includes:- 2 bedrooms, kitchen, dining / lounge area, separate toilet and a combined bathroom & laundry. A built on veranda is also an option.
For all enquiries, quotes & floor plans
contact us today
Office- 03 55654341
Email-
Our extensive range includes three bedroom homes. The extra large one piece building comes as a standard approx. 15 x 5.5 meters or alternatively a 17 x 5.5 metre building can be supplied depending on your location. This very popular design comes complete with a hot water service, reverse cycle split system air conditioner, rangehood, floor coverings and a 6 star energy rating external cladding in maintenance free Colorbond. These homes are exceptional value.
For all enquiries, quotes & floor plans
contact us today
Office- 03 55654341
Email-
For something different, take a look at our 1 bedroom bungalow style building. This is a small home with a big feel. Featuring a floating timber floor, stone bench tops and a cosy built in veranda. The exterior features include roof with gable ends and rendered walls which can be coloured to your choice.
For all enquiries, quotes & floor plans
contact us today
Office- 03 55654341
Email-
Our studio's come in a range of style's, floor plans and colours. Sizes range from 6 x 3 metres to 14 x 4 metres. You can choose open plan or multiple rooms. These units are sturdy & highly customisable, built with Panel Span (sandwich panel), which combines a superior strength to weight ratio with excellent insulation capabilities.
For all enquiries, quotes & floor plans
contact us today
Office- 03 55654341
Email-
These units are industrial grade & highly customisable. Built with Panel Span (sandwich panel) which combines a superior strength to weight ratio with excellent insulation. Built on a sturdy steel frame and includes heating & cooling and hot water service. These buildings comes in a wide range of colours and are available in open plan, multiple rooms for offices or fully self- contained for workers quarters. Various sizes 6 x 3 metres right up to 14 x 4 metres.
For all enquiries, quotes & floor plans
contact us today
Office- 55654341
Email-